The Thriving Greenspaces team have released an update on the permanent public toilet facilities planned for Leith Links (along with the Meadows and Inverleith Park).
This project has been developing over the past couple of years and the units are now being constructed off-site and due to be in place by the end of May 2025.
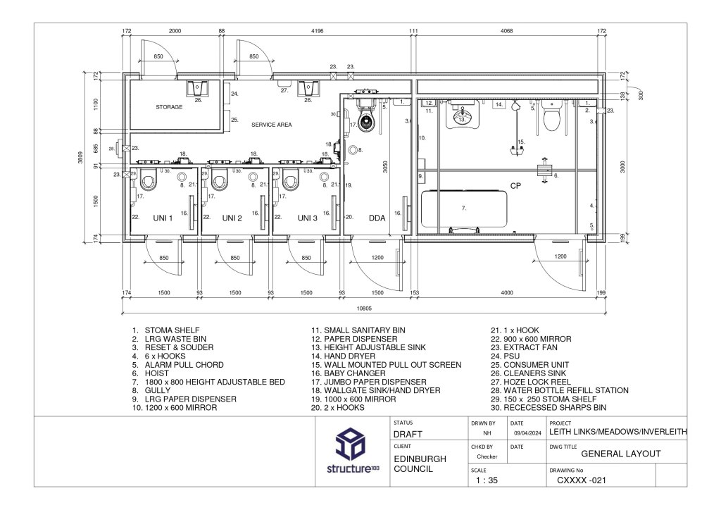
New facilities were originally proposed to be included in the refurbished pavilion as part of the activity hub, but will now be a stand-alone building on the north side of the main east-west connecting route across the park, beside the tennis courts and in close proximity to the playpark.
Some background from the Thriving Greenspaces team:
“This project marks an ambitious milestone for public amenities. Working closely with local groups, stakeholders, and experts, we have created accessible and sustainable spaces that will serve the community now and well into the future. From energy-efficient lighting to water-saving fixtures and a sedum roof, the sustainable features reduce environmental impact while maintaining a welcoming atmosphere.”
Permanent public toilets were the no. 1 voted idea in the consultation on the future of the former bowling greens area ran by Leith Links Community Council back in 2021 (closely followed by a skatepark). Huge credit to them for facilitating the consultation and continuing to support the process to turn these ideas into a reality.
Find out more about the project on the Thriving Greenspaces website: www.thrivinggreenspaces.scot/news/article/34/public-toilets-in-parks-project-update-february-2025

